WhatsApp

En venta Edificio entero de 6 pisos con vista plena al mar. La Perla.

Venta (Ref: #2390)

u$s 1.700.000.-

Datos


  • Operación: Venta
  • Ambientes: 2 amb
  • Ubicación: Avenida Patricio Peralta Ramos y Brandsen
  • Valor: u$s 1.700.000.-
  • Tipo: Edificio
  • Disposición: frente
  • Zona: La Perla
  • m2 cubiertos: 865.79
  • m2 de lote: 243.74

Descripción


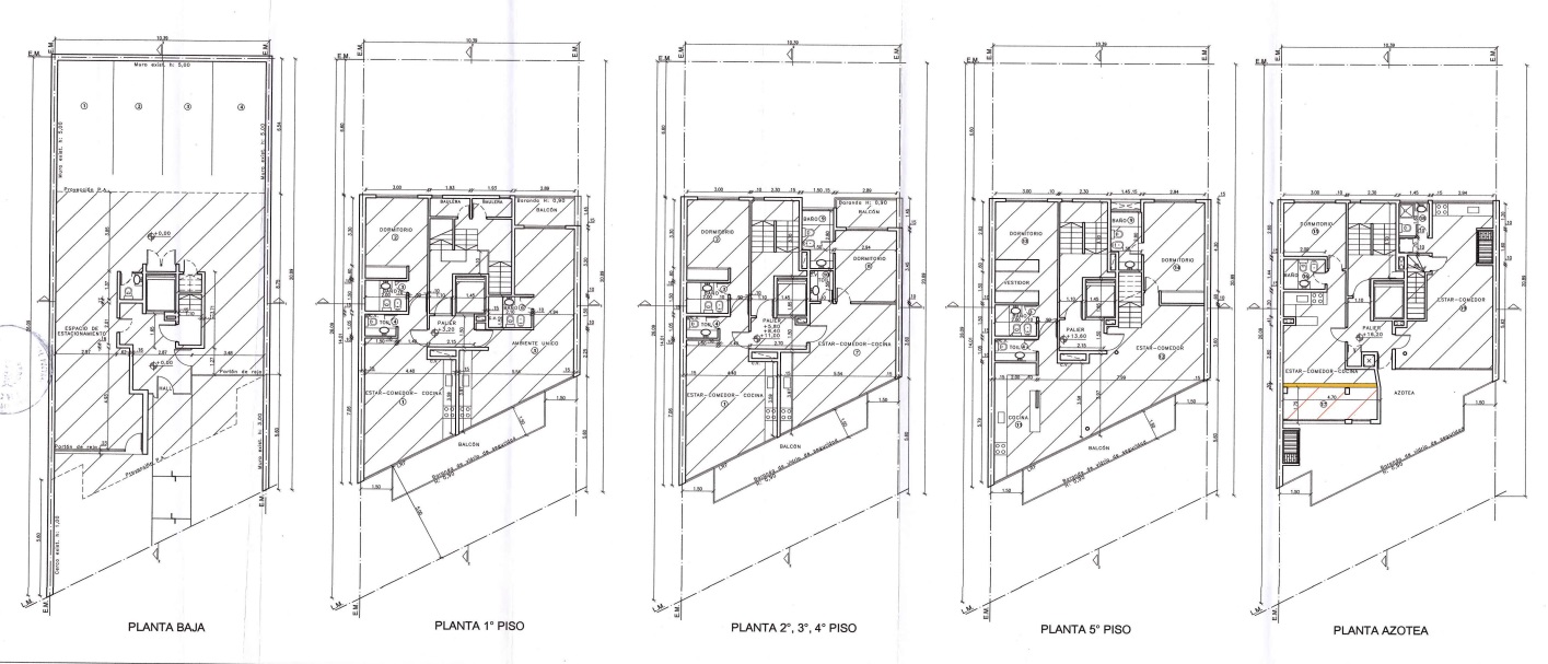
En venta Edificio entero de seis pisos con vista plena al mar. La Perla. Superficie total de 865 m² de los cuales 668.44m² son cubiertos y 187.35m² son semicubiertos sobre lote de 243.74m².  Con un total de 10 unidades. El 1º, 2º, 3º y 4º pisos compuestos por dos departamentos de 2 ambientes cada uno. El 5º piso compuesto por un departamento de 3 ambientes y el 6º piso o planta azotea compuesto por un departamento de 2 ambientes con quincho propio. Todas las unidades con vista plena al mar y cocheras.

Las imágenes fotográficas y videos son propiedad de selecto propiedades por lo que no pueden ser utilizadas sin autorización expresa (ley 11.723). La información gráfica y escrita contenida en el presente aviso es a título meramente estimativo. Las medidas y superficies son aproximadas y solo a efecto orientativo. Las medidas y superficies definitivas surgirán del título de propiedad del inmueble referido. Las propiedades están sujetas a disponibilidad y la información podría contener errores tipográficos.

Las condiciones y o descripciones anteriormente expuestas pueden ser modificadas en cualquier momento sin previo aviso y a criterio de selecto propiedades.

Consultar